- O Περιφερειάρχης Πελοποννήσου, Δημήτρης Πτωχός, κατά την επίσκεψή του στην Π.Ε. Κορινθίας, είχε την ευκαιρία να δει από κοντά τις εξελίξεις του έργου δημιουργίας Γηροκομείου, προϋπολογισμού 1.835.200 ευρώ, που με την ολοκλήρωσή του θα έχει, επίσης, ιατρείο, φυσικοθεραπευτήριο και θα μπορεί να φιλοξενήσει πάνω από τριάντα συμπολίτες μας.
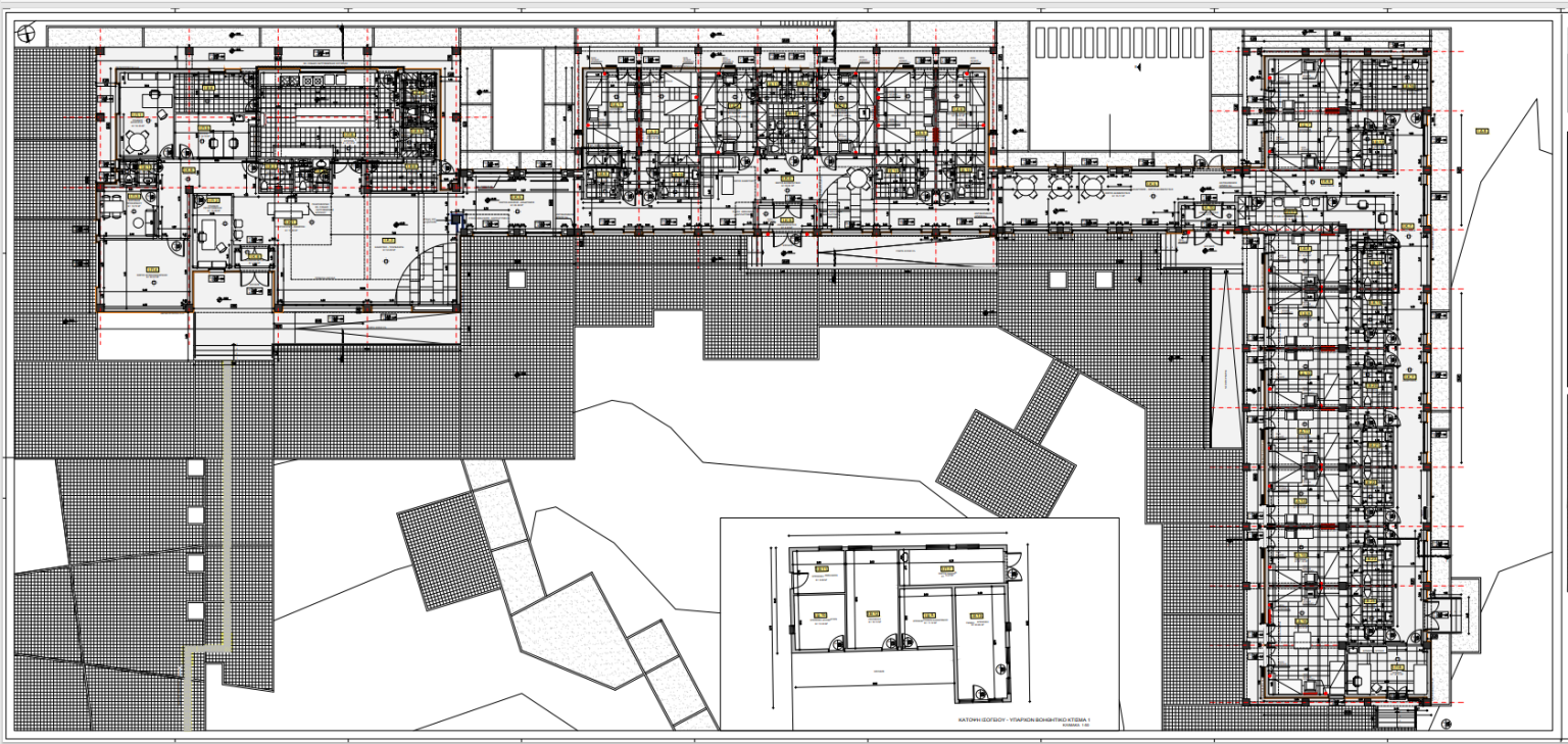
Πρόκειται για το Εκκλησιαστικό Γηροκομείο Κορίνθου «Το Έργο του Αποστόλου Παύλου», όπου με την ανακαίνιση των κτιριακών εγκαταστάσεων θα καλύπτονται οι προδιαγραφές ΑΜΕΑ, παθητικής και ενεργητικής πυροπροστασίας καθώς και οι απαιτήσεις του ΦΕΚ για λειτουργία Μονάδων Φροντίδας Ηλικιωμένων.
Το συγκρότημα θα έχει δυναμικότητα 32 κλινών, σε δύο πτέρυγες κοιτώνων που συνδέονται με κλειστούς, κοινόχρηστους διαδρόμους μεταξύ τους και με την κεντρική πτέρυγα των κοινόχρηστων χώρων.











Comments